Ogłoszenie o naborze wniosków o zawarcie umowy najmu mieszkania w nowym budynku mieszkalnym wielorodzinnym na Osiedlu Letnim

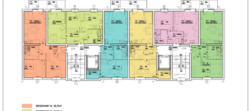
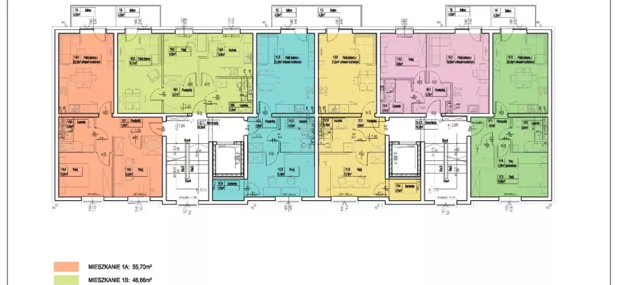
Rzut I piętra

Urząd Miejski w Ząbkowicach Śląskich  informuje o rozpoczęciu naboru wniosków o zawarcie umowy najmu mieszkania w ramach pomocy państwa w ponoszeniu wydatków mieszkaniowych w pierwszych latach najmu mieszkania dla mieszkań budowanych z wykorzystaniem finansowania zwrotnego i wsparcia z Funduszu Dopłat.

Wnioski można składać od dnia 19 sierpnia 2024 roku do dnia 19 września 2024 roku w godzinach od 7.00 do 15.00 (w każdy poniedziałek od godziny 7.00 do 18.00) w Biurze Obsługi Interesanta w siedzibie Urzędu Miejskiego przy ul. 1 Maja 15 w Ząbkowicach Śląskich.

Wnioski o zawarcie umowy najmu będą ewidencjonowane według kolejności ich wpływu i oznaczane datą oraz godziną wpływu.

Szczegółowe informacje związane z budynkiem, sposobem i terminem podpisywania umów najmu oraz wpłaty partycypacji i kaucji można uzyskać w siedzibie Towarzystwa Budownictwa Społecznego Ząbkowice Śl. Sp. z o.o. (ul. Jasna 44) lub pod numerem telefonu: 663 977 993.